四川省岳池县第一中学岳池一中新建学生宿舍楼及附属设施建设工程项目位于岳池县九龙镇银城南路518号。2024年8月16日办理四川省岳池县第一中学岳池一中新建学生宿舍楼及附属设施建设工程项目《建设工程规划许可证》,根据规划公示相关规定,现进行批后公布。
附件: 1.建设工程规划许可证
2.方案总平面图
岳池县自然资源和规划局
2024年8月19日
附件1.建设工程规划许可证

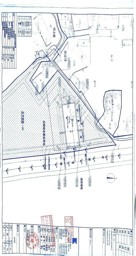
附件2.方案总平面图

四川省岳池县第一中学岳池一中新建学生宿舍楼及附属设施建设工程项目位于岳池县九龙镇银城南路518号。2024年8月16日办理四川省岳池县第一中学岳池一中新建学生宿舍楼及附属设施建设工程项目《建设工程规划许可证》,根据规划公示相关规定,现进行批后公布。
附件: 1.建设工程规划许可证
2.方案总平面图
岳池县自然资源和规划局
2024年8月19日
附件1.建设工程规划许可证

附件2.方案总平面图
